Description de votre projet de construction à Dompierre-sur-Yon
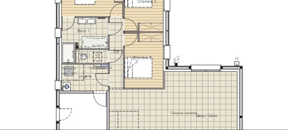
- 102 m²
- 4 pièces
- 3 chambres
- 21 m2
- Hors lotissement
- 242 400 €
Prix avec assurance dommages-ouvrage comprise, terrain viabilisé, frais de notaire non compris, frais divers non compris. Terrain sélectionné et vu pour vous sous réserve de disponibilité et au prix indiqué par notre partenaire foncier. Conditions et visuels non contractuels. - Dompierre-sur-yon, 85170 · Vendee
A DOMPIERRE-SUR-YON sur un terrain de 414 m², MAISONS COMECA vous propose de réaliser cette maison neuve d'une surface de 102 m² habitables avec 3 chambres.
MAISONS COMECA vous propose les prestations suivantes :
- Plan sur-mesure et personnalisé de 2 à 6 chambres
- Mode de chauffage au choix
- Grands choix d'équipements et de prestations
- Matériaux de qualité selon les normes en vigueur
- Accompagnement dans le choix et l’acquisition du terrain
- Construction conforme à la nouvelle RE 2020
Informations du terrain : PROCHE SUR BOURG
ENTOURE DE NATURE
Demandez une étude gratuite et personnalisée de votre projet de construction !
Contactez Thomas GENDRON au 06 31 52 63 93 (Maisons Comeca - Agence de La Roche-sur-Yon).
Quels sont les meilleurs critères quand il faut acheter son terrain ?
Pour vous guider au mieux et ne pas céder à la précipitation, l’équipe Coméca vous donne quelques éléments pour bien acheter votre terrain.
Surface du terrain, situation géographique, localisation, centre ville ou rase campagne, viabilisation… tous ces critères sont essentiels pour sélectionner votre futur terrain constructible. Vous pouvez d’ailleurs réfléchir à établir une checklist avec tous les critères dans l’ordre qui est le plus intéressant pour vous. Cela devrait simplifier votre recherche et votre choix.
Faire construire sa maison neuve près de Dompierre-sur-Yon
Vous êtes familiarisés avec Dompierre-sur-Yon et vous envisagez de vous installer sur cette commune ? nous vous invitons à consulter nos annonces de terrains constructibles à vendre à Dompierre-sur-Yon et ses environs. Parmi ces annonces, vous trouverez notamment un terrain de 270 m² qui peut vous donner un aperçu du marché ou vous aider à repérer votre futur emplacement idéal. Pour la construction de votre future maison individuelle à Dompierre-sur-Yon, vous pouvez avoir confiance en l'expertise de Coméca et bénéficier de nos compétences.
N’attendez plus pour nous parler de votre projet de maison à Dompierre-sur-Yon (85)
Ce projet de construction sucite votre curiosité ?
N’hésitez pas à nous appeler pour en savoir plus et prendre rendez-vous pour une visite sur place. Nos collaborateurs Coméca de seront ravis de vous accompagner dans votre projet de contruction de maison à Dompierre-sur-Yon et élaborer avec vous votre projet de construction dans son ensemble : la typologie de maison que vous désirez faire construire, vos modes de vie, vos désirs…
Demander une étude gratuite personnalisée
Remplissez ce formulaire pour obtenir plus d'informations sur cette annonce ou pour être recontacté par un de nos conseillers.
Ce terrain vous intéresse ?
Nos conseillers Coméca sont là pour vous accompagner dans l'achat de votre terrain à bâtir et discuter de votre projet de construction de A à Z.
Parlez-nous de votre projet !
Envoyer un messageAppelez-nous



